

















Design:
設計團隊:INSPIRATION GROUP
Design Date:
設計時間:2022
Location:
項目地點:廣東廣州
Area:
項目面積:72m²
Photo:
攝影:黄早慧 Zaohui Huang & Liky
对于鱼来说,缸就是它的全世界,
对于我来说,这个房子就是全世界
–长春里8号业主
闯荡、创业、停滞、疗愈,
岁月柔软,皆在这七十二方。
当理想照进现实
一双儿女,三代同堂,六口之家,七十二平方
理想:琴房书吧+小卖部+四卧室+超级储物+家庭聚餐+小朋友做功课玩耍+爷爷奶奶养鱼栽花
现实:剥落+坍塌+破损+老旧+动线陡峭+狭长高挑+阴暗潮湿
诚如太阳和灯泡的本质都是一种光,
我不是魔法师,但我可以尝试为你“种光”,
让理想照进现实
–设计师·谢英凯(Thomas Tse)
建筑中建立人与自然的关系,满足人与自然的对话,让人在建筑中感受到生命力和烟火气,汤物臣·肯文谢英凯设计团队,持续探索人与自然、人与空间、个人空间与公共空间的连接,设计空间注入善意与人文关怀,持续践行“种光”计划。
01 时间回溯
此刻,纵然生活虐我,在家的建构中亦能感受到生活中依然存有细腻的美好,设计的核心在于”人“,汤物臣·肯文谢英凯设计团队一直致力探讨,把光“种”进房子,”照“进社区, 让理想照进现实。
02 乐活其中
① 一砖一瓦间
新旧之间,城市的记忆在延续
顺着城市的肌理,提取还原岭南建筑中的屋顶盖瓦,保留这座百年老宅的世代记忆。
囿于建筑原有的邻里关系,我们延续屋顶的旧有形态,通过弧形明确新建筑风格
曲面屋顶从三层花园空间延伸至房屋内部,直至一层地面,切分并增强空间的穿透性。曲面如同建筑的“精神象征”,在家中的每个角落都能与家庭成员产生互动,为家增添更多情致
用料选用手工砖取代传统瓦片,既保留了岭南风情的古朴质感,亦能确保现代生活的便利和功能性。同时与入户门牌相呼应,让家的记忆延续
错落有致的玻璃砖镶嵌其中,内部留有灯光设置,白天增强屋内的自然采光,夜晚则如同“繁星点点”,增添了曼妙柔和的魅力
② 七时二方间
七时晨起而作,二方琴室听音
熙熙攘攘,车水马龙,房子与社区的生命力和烟火气
“二方”琴室独立成间,与图书及自由活动空间相邻,在确保隔音性的同时,为等待练琴的孩子们提供了玩乐的所在
当琴室落地窗敞开,面向自由活动区,一个迷你剧场呈现于眼前
“七时”士多面向通向学校的主路,宽敞明亮的窗口及室外休息区吸引学生驻足停留。
这里还隐藏着房子中的“彩蛋”。在士多区域的货架上摆放着一个盲盒扭蛋机,为社区里的小学生提供每周一次的抽选机会,可以随机得到免费零食,获得放学路上的快乐时光。
士多背后的餐厅区域安装了定制的可活动式家具,通过多种变形、收纳,可满足不同的生活工作需求,确保活动的舒适性。
③ 自有天地间
乐在其中,乐享其中
家,既要和乐融融的亲密,还要自得其乐的独立
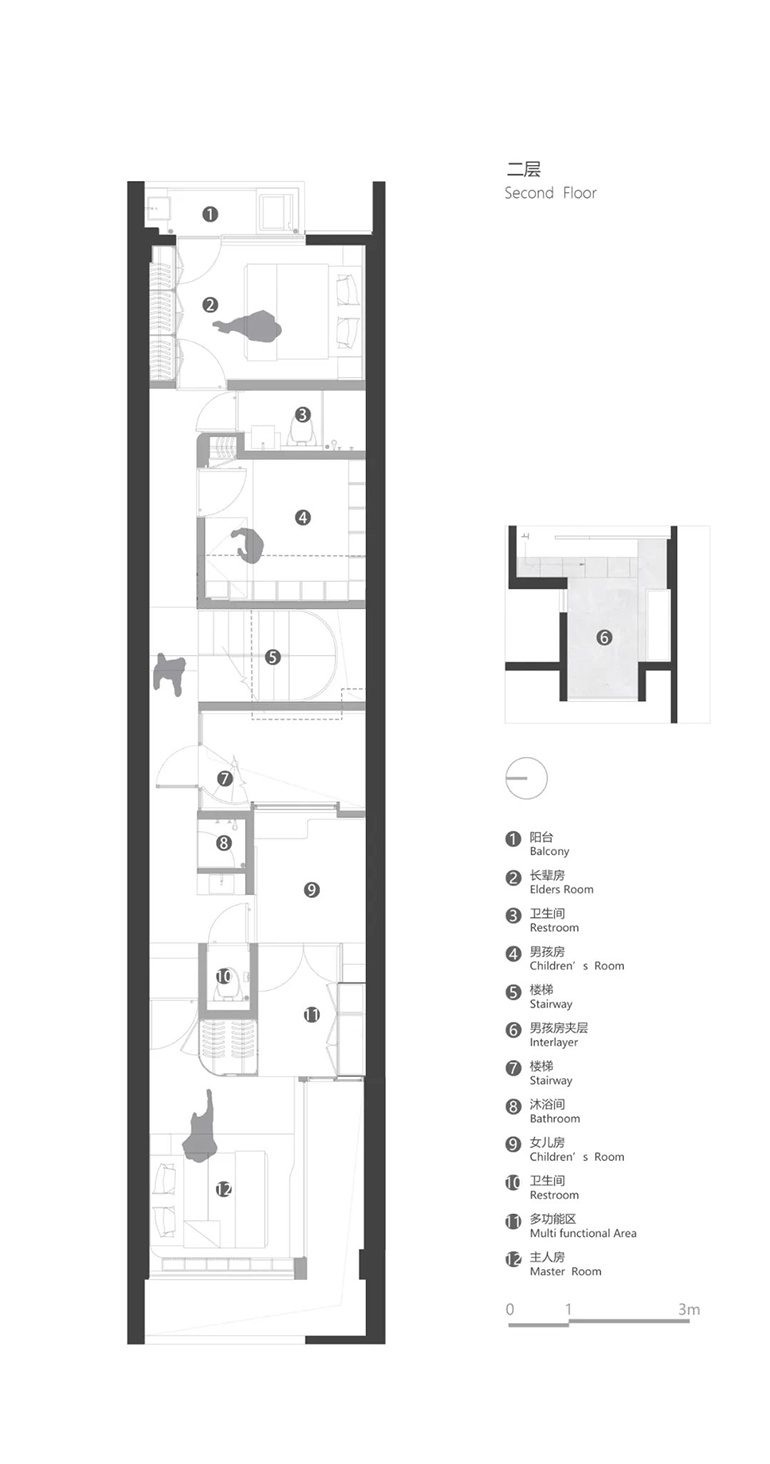
二层往老人房一侧,增加了多种适老化的装置设施,并在老人房的阳台中,为爷爷保留了养鱼的天地
配合男孩子活泼好动的性格,房间中可攀爬的夹层空间,仰望天空,日夜都能带来无限的想象和治愈的力量
二楼另一侧,女儿房和主人房之间隐藏着一个可变的多用“魔盒”,平时与主卧相连可作衣帽间、化妆间。当秘密通道开启,瞬间成为小女儿的玩乐世界
顺着旋转楼梯到达三楼平台,惬意的小菜园成为了居家生活的“调味剂”,也给邻居的窗外带来一点绿意盎然的美好。留空的生活平台供家人晾晒、休憩,自成一片自在天地
房子的延伸是家,家,是承载生活的容器,从家的生活逻辑延伸到社区生活逻辑,汤物臣·肯文谢英凯设计团队打造内建筑“宅内之居”,为业主为社区”种光“,让每个人都配拥有属于自己的理想国、乌托邦。
都市种光计划仍在继续
城市乌托邦的构想从未远去
④ 后记
项目工期历经6个月,经历了广州疫情封控的封闭与开放,经历了酷暑的烈日当头的和冬日的寒风刺骨
感谢每一位用心的参与者,感谢彼此的努力与共创,感谢一起“种光”